3
Free account required
$1,899,900 List $1,899,900 Terminated
Terminated 1072 days ago
Lotb224 Valleyway Dr
· 5
· 4
· 2
· 3000-3500
Listing History
Buy/Sell/Terminated/Expired listing history for Lotb224 Valleyway Dr
Key Facts
Key facts for Lotb224 Valleyway Dr
Property Type
House, 2-Storey
Parking
Attached 2 garage, 2 parking
MLS #
W5801819
Size
3000-3500 sqft
Basement
Unfinished
Listed on
2022-10-20
Lot size
38 x 100.00
Tax
-
Days on Market
1105
Approximate Age
New
Maintenance Fee
-
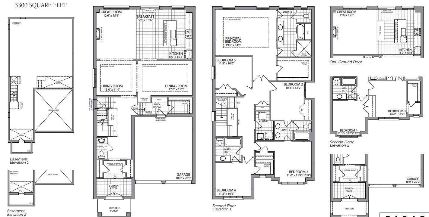
Description
Perfect Detached Home With No Home On Back In New Sub Division By Paradise, An Absolute Show Stopper!!! Brand New Under Construction Detached North Facing Home On Assignment Sale With 3300 Sqft - Vincent Model On 38' Lot, Open Concept, 5 Bedrooms, 3.5 Washrooms With 2nd Floor Laundry. Impressive 10'... Ceiling On M/Flr & 9' On 2nd Flr With 10' Coffered Ceiling In Master Bdrm! 5 Large Spacious Bedrooms On 2nd Floor With 3 Full Bath. Hardwood On Main With Chef Kitchen. **** Extras **** Granite Counter Top, Stained Hardwood, Oak Stained Stairs, Extended Kitchen Cabinet, Premium 38" Lot!! Double Door Entrance!! Convenient 2nd Flr Laundry** Very Attractive And Practical Layout, Transit At The Door. Walking Distance To All.
Courtesy of: SAVE MAX ROYAL REALTY, BROKERAGE